小型鏈斗提沙機廠家|鏈斗提升機安全操作規程
文章作者:奧創機械發布時間:2019/12/13 14:27:11瀏覽次數:
鏈斗輸送機安全操作規程
1、鏈斗機由指定人員進行維護和管理,電源開關箱的鑰匙由指定人員管理。
2、鏈斗機必須有卷揚限制器和行程限位器,限制器應使滑輪在提升到距離卷筒或滑輪300mm以前時能自動停止
。
3、鏈斗機應有最大負荷標志,在提升、降落時重量不許超負荷(1T)。
4、送電后,檢查卷揚限制器、行程限位器、聯鎖開關等安全裝置,動作靈敏可靠,并進行試吊。
5、起吊、降落前,鳴鈴示警后,方可開車。
6、鏈斗機決對不允許載人上、下。
7、工作完后,提升機吊盤應落地,然后切斷電源,關好上下護欄門。
8、經常保持提升機周圍環境衛生。
奧創機械鏈斗輸送機廠家優勢
1、輸送機的牽引鏈條采用專業鏈條廠家生產的高強度雙排重型板式鏈,運行穩定可靠且使用壽命長;
2、機尾部分采用彈簧螺旋張緊裝置,可使牽引鏈條的張緊力自動調整,特別適合遠距離、重載荷的輸送機;
3、工藝布置靈活;可架高、地面或地坑布置,可水平或斜升安裝,也可水平加斜升安裝;
4、背負驅動機構,結構緊湊,安裝方便。
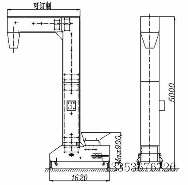
河南奧創鏈斗提沙機結構圖紙繪畫、價格計算、廠家真機圖片展示,及到廠實地考察接待,歡迎實地考察!
訂購網址請登錄河南奧創機械有限公司官方網站:www.teecy.cn 24小時服務熱線:13353676726


